新築一戸建て 東広島市西条町寺家5199-10他
所在地
東広島市西条町寺家5199-10他
4,280万円
52.00坪
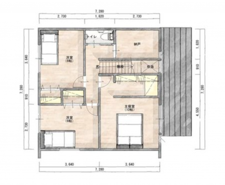
4LDK
月々の
支払例
支払例
万円
年
%
円
※中国銀行/借入金4,280万円、返済期間35年、金利0.600%(変動)の場合
※審査により金利は変わる可能性があります。
物件概要
- 交通
-
山陽線 まで 徒歩16分
- 接道状況
- 南西側 公道
- 土地面積
- 公簿 110.54㎡ (33.43坪)
- 建物面積
- 171.91㎡ (52.00坪)
- 築年数
- 2025年 (令和7) 12月
- 建ぺい率
- 60%
- 容積率
- 200%
- 土地権利
- 所有権
- 構造および階数
- 木造
- 小学校区
- 中学校区
- 私道負担
- 地目
- 現況
- 引渡時期
- 即時
- 駐車場
- 有
- 上水道
- 下水道
- ガス
- 都市計画
- 市街化区域
- 用途地域
- 1種住居
- 設備・条件
- 備考
- 取引態様
- 仲介
周辺地図
その他周辺物件
*35年ローン / 金利0.600%の場合
※審査により金利は変わる可能性があります。
詳しくは詳細ページをご覧ください。



