新築一戸建て 東広島市西条町寺家
所在地
東広島市西条町寺家
5,290万円
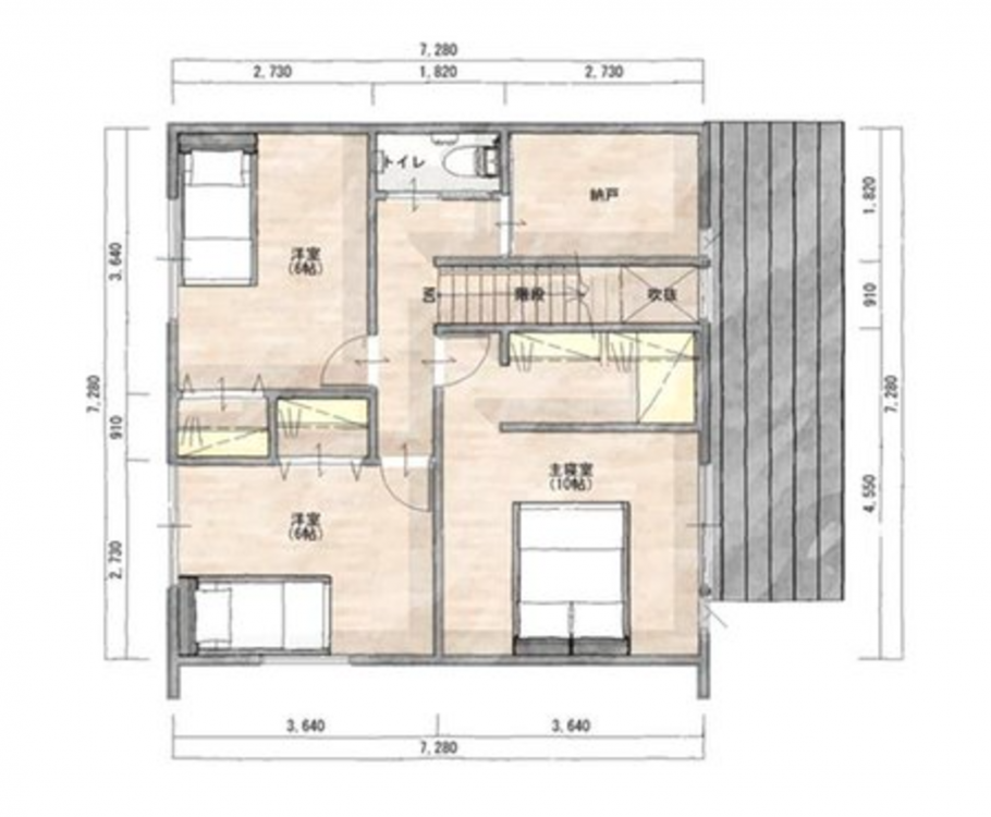
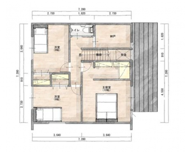
34.75坪
3SLDK
★東広島市立龍王小学校、東広島市立西条中学校区
*コープ東広島まで400m(徒歩5分)
*くすりのレデイ広島西条店まで600m(徒歩8分)
*東広島寺西郵便局まで300m(徒歩4分)
月々の
支払例
支払例
万円
年
%
円
※中国銀行/借入金5,290万円、返済期間35年、金利0.600%(変動)の場合
※審査により金利は変わる可能性があります。
物件概要
- 交通
-
山陽線 寺家駅 まで 徒歩19分
- 接道状況
- 南側6m 間口約15.8m
- 土地面積
- 173.25㎡ (52.40坪)
- 建物面積
- 114.90㎡ (34.75坪)
- 築年数
- 2026年 (令和8) 8月
- 建ぺい率
- 60%
- 容積率
- 200%
- 土地権利
- 所有権
- 構造および階数
- 木造 地上2階建
- 小学校区
- 龍王 (300m)
- 中学校区
- 西条 (500m)
- 私道負担
- なし
- 地目
- 現況
- 引渡時期
- 相談
- 駐車場
- 上水道
- 公共
- 下水道
- 浄化槽個別
- ガス
- 都市計画
- 用途地域
- 1種住居
- 建築確認番号
- HP04-4133609
- 設備・条件
- オール電化、ウォークインクローゼット、モニタ付インターホン、駐車場2台分、駐車場:カーポート/長期優良住宅認定通知書 / フラット35・S適合証明書 /LDK20畳以上 / 市街地が近い / 南側道路面す /整形地 / 南庭 / 都市近郊 /小学校 徒歩10分以内 / 平坦地 / 開発分譲地内 / 納戸 / スマートキー
- 備考
- 取引態様
- 仲介
周辺地図
その他周辺物件
*35年ローン / 金利0.600%の場合
※審査により金利は変わる可能性があります。
詳しくは詳細ページをご覧ください。



