収益物件/旅館 東広島市河内町小田
所在地
東広島市河内町小田
890万円
★東広島市立河内小学校、東広島市立河内中学校区
*Aコープ こうち店まで7.4km(車9 分)
*コメリハード&グリーン広島河内店まで6.9km(車8 分)
*河内郵便局まで7.5km(車9 分)
月々の
支払例
支払例
万円
年
%
円
※中国銀行/借入金890万円、返済期間35年、金利0.600%(変動)の場合
※審査により金利は変わる可能性があります。
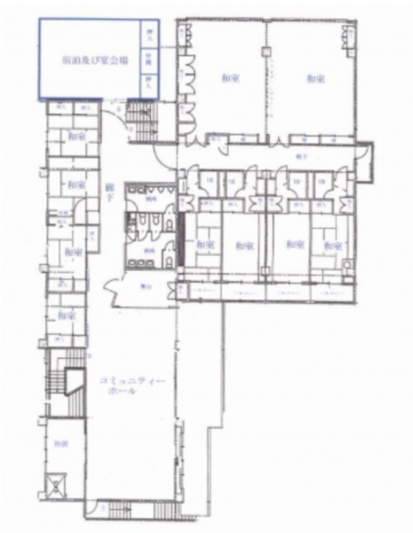
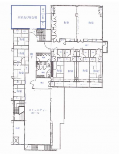
物件概要
- 交通
-
山陽線 河内駅 バス9分乗車 バス停小田橋 まで 徒歩25分
- 土地面積
- 2126.69㎡ (643.32坪)
- 建物面積
- 1287.04㎡ (389.32坪)
- 所在階/階数
- 築年数
-
1993年
(平成5)
2月
築33年 - 建ぺい率
- 容積率
- 土地権利
- 所有権
- 構造および階数
- RC(鉄筋コンクリート) 造 地下1階 地上2階建
- 小学校区
- 河内 (8100m)
- 中学校区
- 河内 (8100m)
- 私道負担
- 地目
- 現況
- 空
- 引渡時期
- 相談
- 駐車場
- 有
- 上水道
- 下水道
- ガス
- 都市計画
- 管理形態
- 管理方式
- 用途地域
- 設備・条件
- エレベーター、給湯
- 備考
- 駐車場月額:無料
- 取引態様
- 仲介
周辺地図
その他周辺物件
*35年ローン / 金利0.600%の場合
※審査により金利は変わる可能性があります。
詳しくは詳細ページをご覧ください。



