収益物件/店舗 東広島市黒瀬町丸山
所在地
東広島市黒瀬町丸山
8,200万円
月々の
支払例
支払例
万円
年
%
円
※中国銀行/借入金8,200万円、返済期間35年、金利0.600%(変動)の場合
※審査により金利は変わる可能性があります。
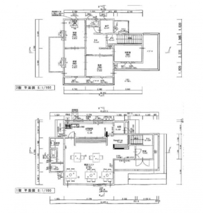
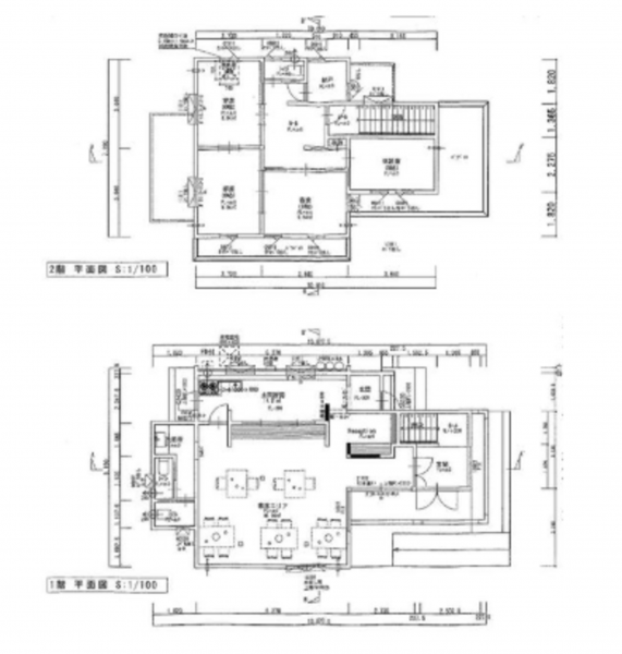
物件概要
- 交通
-
バス停黒瀬中学校前 まで 徒歩3分
- 土地面積
- 560.40㎡ (169.52坪)
- 建物面積
- 136.32㎡ (41.23坪)
- 所在階/階数
- 築年数
- 2025年 (令和7) 7月
- 建ぺい率
- 60%
- 容積率
- 200%
- 土地権利
- 所有権
- 構造および階数
- 木造 地上2階建
- 小学校区
- 中学校区
- 私道負担
- 地目
- 宅地
- 現況
- 空
- 引渡時期
- 相談
- 駐車場
- 有
- 上水道
- 下水道
- ガス
- 都市計画
- 市街化調整区域
- 管理形態
- 管理方式
- 用途地域
- 設備・条件
- 駐車場3台分、トイレ2箇所、プロパンガス
- 備考
- 駐車場月額:無料
- 取引態様
- 仲介
周辺地図
その他周辺物件
*35年ローン / 金利0.600%の場合
※審査により金利は変わる可能性があります。
詳しくは詳細ページをご覧ください。



