マンション メゾンドペガサス東広島
所在地
東広島市西条町寺家
1,998万円
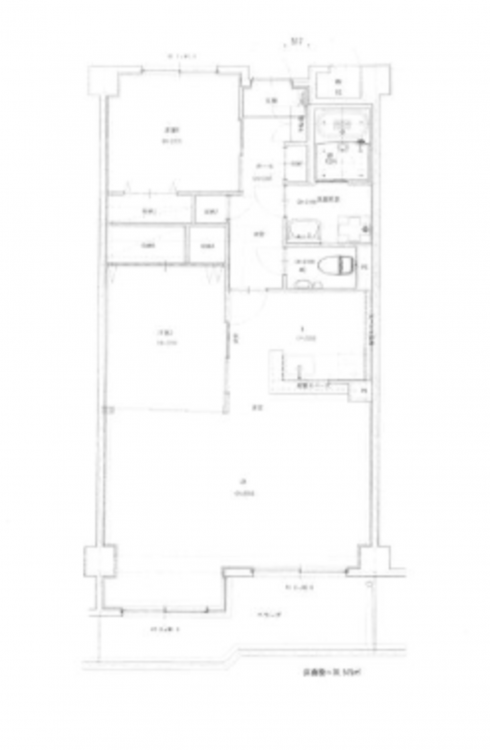
70.58m²
2LDK
★東広島市立龍王小学校、東広島市立西条中学校区
*IKOCCAエブリイ 西条寺家店まで260m(徒歩3 分)
*ジュンテンドー 八本松店まで2.5km(車5 分)
*東広島寺西郵便局まで950m(徒歩13 分)
月々の
支払例
支払例
万円
年
%
円
※中国銀行/借入金1,998万円、返済期間35年、金利0.600%(変動)の場合
※審査により金利は変わる可能性があります。
物件概要
- 交通
-
山陽線 寺家駅 まで 徒歩8分
- 専有面積
- 内法 70.58㎡
- バルコニー
-
14.00㎡
(南側)
- 所在階/階数
- 6階/6階
- 築年数
-
2005年
(平成17)
2月
築21年 - 建ぺい率
- 容積率
- 土地権利
- 所有権
- 構造および階数
- RC(鉄筋コンクリート) 造 地上6階建
- 小学校区
- 龍王 (950m)
- 中学校区
- 西条 (1100m)
- 地目
- 現況
- 空
- 引渡時期
- 即時
- 駐車場
- 空無
- 駐車場月額
- 管理形態
- 一部委託
- 管理方式
- 管理人常駐
- 管理会社
- 株式会社合人社
- 管理費
- 7,900円
- 修繕積立費
- 8,300円
- 上水道
- 下水道
- ガス
- 都市計画
- 用途地域
- 1種住居
- 設備・条件
- カウンターキッチン、シャンプードレッサー、洗浄便座、浴室乾燥機、追い焚き、ルーフバルコニー、オートロック、エレベーター、プロパンガス,上水道,下水道,給湯,バス専用,トイレ専用,バス・トイレ別,シャワー,洗濯機置場,エアコン,BS端子,フローリング,照明器具付き,収納スペース,シューズインクローゼット,トランクルーム,駐輪場,最上階,5年以内に水回り設備交換,5年以内に内装リフォーム
- 備考
-
管理組合有無:有
国土法届出:不要 - 取引態様
- 仲介
周辺地図
その他周辺物件
*35年ローン / 金利0.600%の場合
※審査により金利は変わる可能性があります。
詳しくは詳細ページをご覧ください。



