新築一戸建て 東広島市入野中山台4丁目
所在地
東広島市入野中山台4丁目
3,380万円
0.30坪
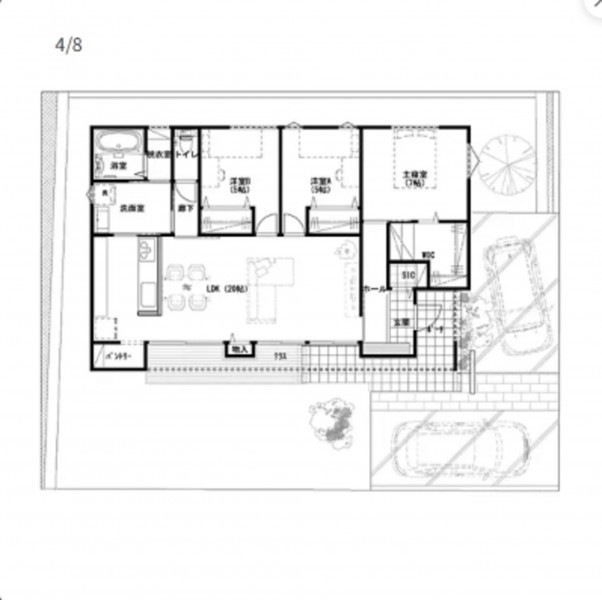
3SLDK
月々の
支払例
支払例
万円
年
%
円
※中国銀行/借入金3,380万円、返済期間35年、金利0.600%(変動)の場合
※審査により金利は変わる可能性があります。
物件概要
- 交通
-
山陽線 まで 徒歩19分
- 土地面積
- 235.43㎡ (71.21坪)
- 建物面積
- 1.00㎡ (0.30坪)
- 築年数
- 建ぺい率
- 容積率
- 50%
- 土地権利
- 所有権
- 構造および階数
- 木造
- 小学校区
- 中学校区
- 私道負担
- 地目
- 現況
- 引渡時期
- 駐車場
- 有
- 上水道
- 下水道
- ガス
- 都市計画
- 用途地域
- 1種低層
- 設備・条件
- 備考
- 取引態様
- 仲介
周辺地図
その他周辺物件
*35年ローン / 金利0.600%の場合
※審査により金利は変わる可能性があります。
詳しくは詳細ページをご覧ください。



