中古一戸建て 東広島市高屋高美が丘8丁目
所在地
東広島市高屋高美が丘8丁目
2,310万円
43.52坪
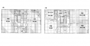
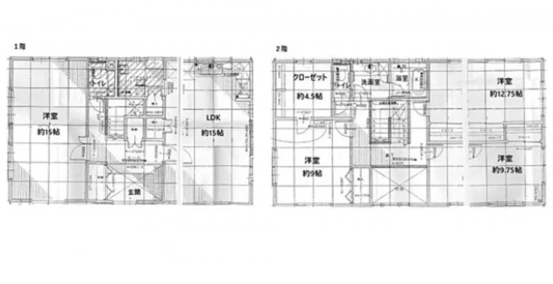
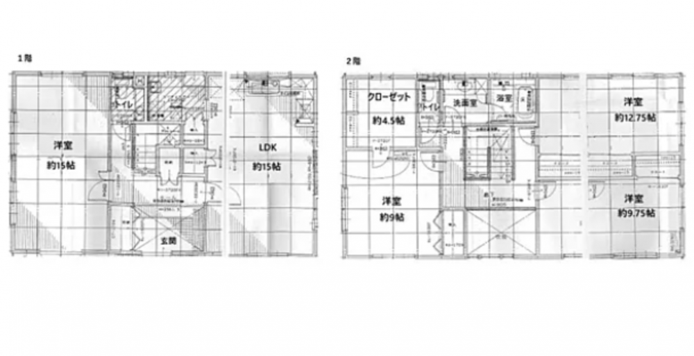
4SLDK
★東広島市立高美が丘小学校、東広島市立高美が丘中学校区
*マックスバリュ高屋店まで1.5km(徒歩22 分)
*ジュンテンドー 高屋店まで1.7km(徒歩25 分)
*高屋郵便局まで400m(徒歩6 分)
月々の
支払例
支払例
万円
年
%
円
※中国銀行/借入金2,310万円、返済期間35年、金利0.600%(変動)の場合
※審査により金利は変わる可能性があります。
物件概要
- 交通
-
バス停高美が丘小学校 まで 徒歩2分
- 接道状況
-
北西側 公道7.5m
南西側 公道6m - 土地面積
- 公簿 312.06㎡ (94.39坪)
- 建物面積
- 143.87㎡ (43.52坪)
- 築年数
-
1997年
(平成9)
3月
築29年 - 建ぺい率
- 40%
- 容積率
- 80%
- 土地権利
- 所有権
- 構造および階数
- 木造 地上2階建
- 小学校区
- 高美が丘 (80m)
- 中学校区
- 高美が丘 (700m)
- 私道負担
- 地目
- 宅地
- 現況
- 居住中
- 引渡時期
- 相談
- 駐車場
- 有
- 上水道
- 下水道
- ガス
- 都市計画
- 市街化区域
- 用途地域
- 1種低層
- 設備・条件
- 角地
- 備考
-
☆三井ホームの家で洒落た外観になっています☆広い敷地で、並列駐車2台に庭もあります
南西角地!大きな家! - 取引態様
- 仲介
周辺地図
その他周辺物件
*35年ローン / 金利0.600%の場合
※審査により金利は変わる可能性があります。
詳しくは詳細ページをご覧ください。



