中古一戸建て 東広島市安芸津町風早
所在地
東広島市安芸津町風早
800万円
43.49坪
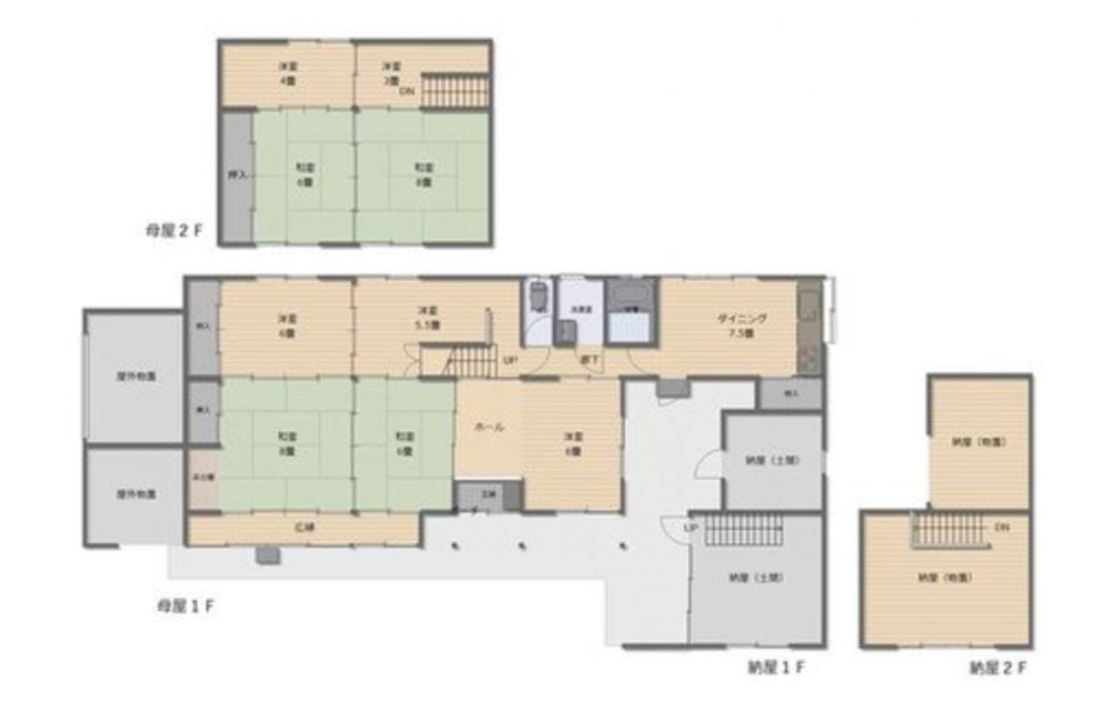
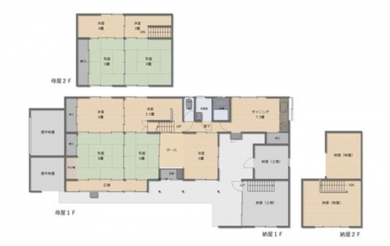
9DK
★東広島市立風早小学校、東広島市立安芸津中学校区
*藤三安芸津店まで932m(徒歩12分)
*ホームセンタージュンテンドー安芸津店まで999m(徒歩13分)
*安芸津風早郵便局まで887m(徒歩12分)
月々の
支払例
支払例
万円
年
%
円
※中国銀行/借入金800万円、返済期間35年、金利0.600%(変動)の場合
※審査により金利は変わる可能性があります。
物件概要
- 交通
-
バス停東風早 まで 徒歩6分
- 接道状況
- 南側2m
- 土地面積
- 5192.66㎡ (1570.77坪)
- 建物面積
- 143.79㎡ (43.49坪)
- 築年数
-
1950年
(昭和25)
1月
築76年 - 建ぺい率
- 容積率
- 土地権利
- 所有権
- 構造および階数
- 木造 地上2階建
- 小学校区
- 風早 (974m)
- 中学校区
- 安芸津 (1570m)
- 私道負担
- なし
- 地目
- 現況
- 引渡時期
- 相談
- 駐車場
- 有
- 上水道
- 公共
- 下水道
- 浄化槽個別
- ガス
- プロパン個別
- 都市計画
- 用途地域
- 設備・条件
- 駐車場:カースペース/駐車3台以上可 / 土地100坪以上 / 和室 / 2階建 / 浴室に窓 / 古民家風
- 備考
-
【この物件について】 農地法の許可を要す(一部農振指定) 建物未登記部分有 平成6年増築部分有 セットバック要 宅地部分:326.66m2(98.81坪) 農地部分:4866m2 別途、字藤原1873-1(畑 405m2)、1783-2(墓地 20m2)有
自然豊かな環境
古民家 9DK+納屋・倉庫
納屋・倉庫部分:木造2階建 85.94m2 - 取引態様
- 仲介
周辺地図
その他周辺物件
*35年ローン / 金利0.600%の場合
※審査により金利は変わる可能性があります。
詳しくは詳細ページをご覧ください。



