新築一戸建て 東広島市八本松町米満
所在地
東広島市八本松町米満
3,280万円
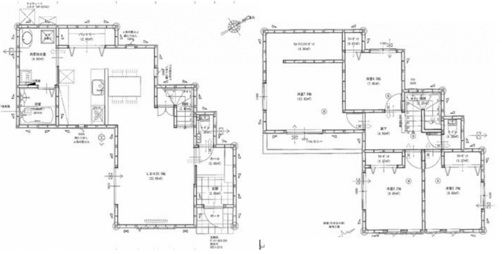
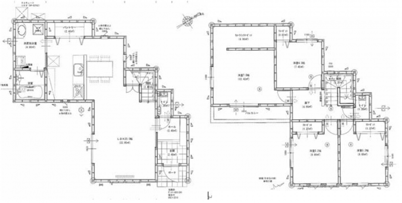
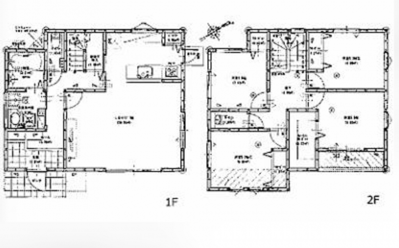
30.30坪
3SLDK
*ゆめマート八本松まで約911m(徒歩12分)
*セブンイレブン東広島八本松磯松店まで約214m(徒歩3分)
*ウエルシア東広島八本松飯田店まで約1444m(徒歩19分)
月々の
支払例
支払例
万円
年
%
円
※中国銀行/借入金3,280万円、返済期間35年、金利0.600%(変動)の場合
※審査により金利は変わる可能性があります。
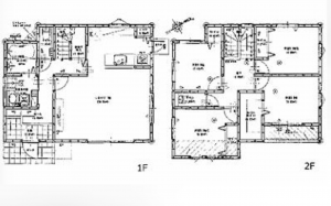
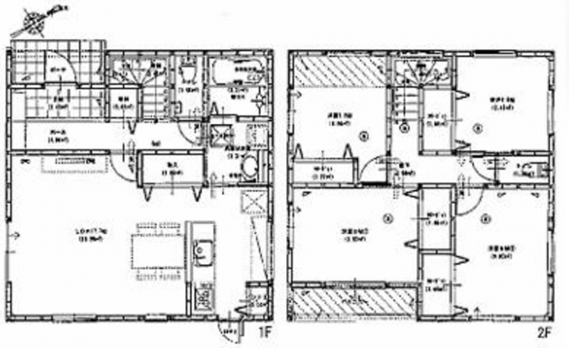
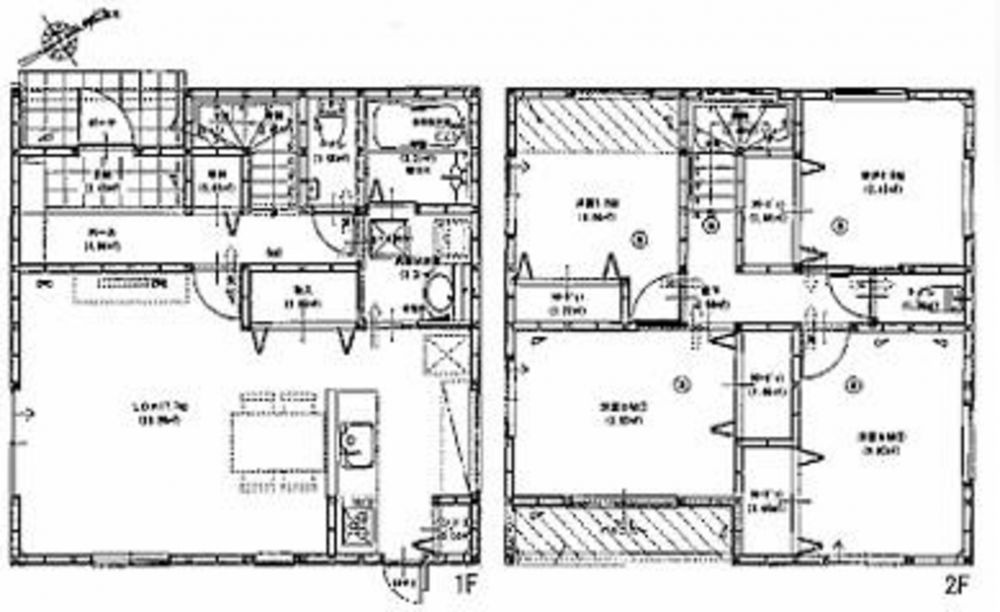
物件概要
- 交通
-
山陽線 寺家駅 バス停雇用促進住宅入口 まで 徒歩3分
- 接道状況
- 6m アスファルト舗装
- 土地面積
- 実測 172.81㎡ (52.27坪)
- 建物面積
- 100.19㎡ (30.30坪)
- 築年数
- 2025年 (令和7) 10月
- 建ぺい率
- 60%
- 容積率
- 200%
- 土地権利
- 所有権
- 構造および階数
- 小学校区
- 中学校区
- 私道負担
- 地目
- 現況
- 引渡時期
- 相談
- 駐車場
- 上水道
- 公共
- 下水道
- 浄化槽個別
- ガス
- 都市計画
- 用途地域
- 市街化調整区域
- 建築確認番号
- 第R07認広建セ00487号他
- 設備・条件
- システムキッチン、食器洗浄乾燥機、IHクッキングヒーター、オール電化、洗浄便座、浴室乾燥機、複層ガラス、ウォークインクローゼット、モニタ付インターホン、床下収納、トイレ2箇所、フラット35・S適合証明書 / フラット35Sに対応 / 地盤調査済 / 駐車3台以上可 /LDK18畳以上 / 省エネ給湯器 /全居室収納 /シャワー付洗面化粧台 / 対面式キッチン / 2階建 / オートバス /節水型トイレ / 緑豊かな住宅地 / パントリー(食器・食品の収納庫) /全居室複層ガラスか複層サッシ / 開発分譲地内 /スマートキー / 高機能トイレ
- 備考
-
宅地造成工事規制区域
建築許可理由:開発許可等による分譲地 - 取引態様
- 仲介
周辺地図
その他周辺物件
*35年ローン / 金利0.600%の場合
※審査により金利は変わる可能性があります。
詳しくは詳細ページをご覧ください。



