中古一戸建て 東広島市西条土与丸3
所在地
東広島市西条土与丸3
4,780万円
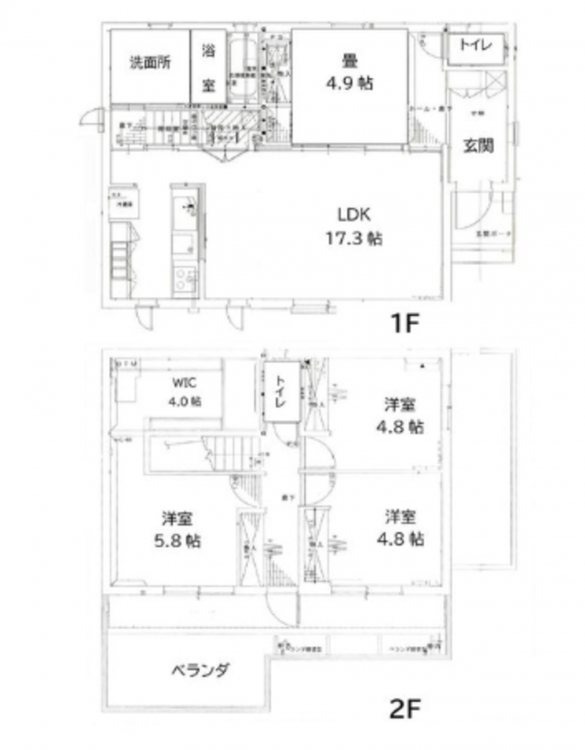
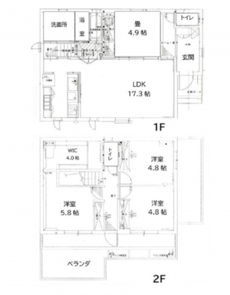
32.20坪
4LDK
月々の
支払例
支払例
万円
年
%
円
※中国銀行/借入金4,780万円、返済期間35年、金利0.600%(変動)の場合
※審査により金利は変わる可能性があります。
物件概要
- 交通
-
山陽線 西条駅 まで 徒歩16分
- 接道状況
- 南側4.2m 間口約26.5m
- 土地面積
- 240.14㎡ (72.64坪)
- 建物面積
- 106.47㎡ (32.20坪)
- 築年数
-
2021年
(令和3)
2月
築5年 - 建ぺい率
- 70%
- 容積率
- 255%
- 土地権利
- 所有権
- 構造および階数
- 鉄骨造 地上2階建
- 小学校区
- 中学校区
- 私道負担
- なし
- 地目
- 現況
- 引渡時期
- 相談
- 駐車場
- 上水道
- 公共
- 下水道
- 浄化槽個別
- ガス
- 都市計画
- 用途地域
- 市街化調整区域
- 設備・条件
- システムキッチン、食器洗浄乾燥機、オール電化、洗浄便座、浴室乾燥機、複層ガラス、ウォークインクローゼット、トイレ2箇所、駐車場:カースペース/設計住宅性能評価書 / 建設住宅性能評価書(新築時) / 建築確認完了検査済証 / 新築時・増改築時の設計図 / 太陽光発電システム / 高気密高断熱住宅 / 地盤調査済 / 駐車3台以上可 / 2沿線以上利用可 / スーパー 徒歩10分以内 / 市街地が近い /全居室収納 / 駅まで平坦 / 南側道路面す / LDK15畳以上 / 角地 / 和室 / 庭 / 対面式キッチン / ワイドバルコニー / 3面採光 / 浴室に窓 / 節水型トイレ / 前面棟無 / 通風良好 /平坦地
- 備考
-
構造・工法:鉄骨2階建(鉄鋼系軸組構造)
施工:旭化成ホームズ(株)
建築許可理由:調整区域につき建築許可要 - 取引態様
- 仲介
周辺地図
その他周辺物件
*35年ローン / 金利0.600%の場合
※審査により金利は変わる可能性があります。
詳しくは詳細ページをご覧ください。



