土地 東広島市西条町下三永
所在地
東広島市西条町下三永
967万円
55.22坪
★東広島市立三永小学校、東広島市立向陽中学校区
*エブリイ西条御薗宇店まで4.1km(車8分)
*ユーホー東広島店まで3.2km(車7分)
*三永郵便局まで850m(徒歩13分)
月々の
支払例
支払例
万円
年
%
円
※中国銀行/借入金967万円、返済期間35年、金利0.600%(変動)の場合
※審査により金利は変わる可能性があります。
物件概要
- 交通
-
ゴルフ場下バス停
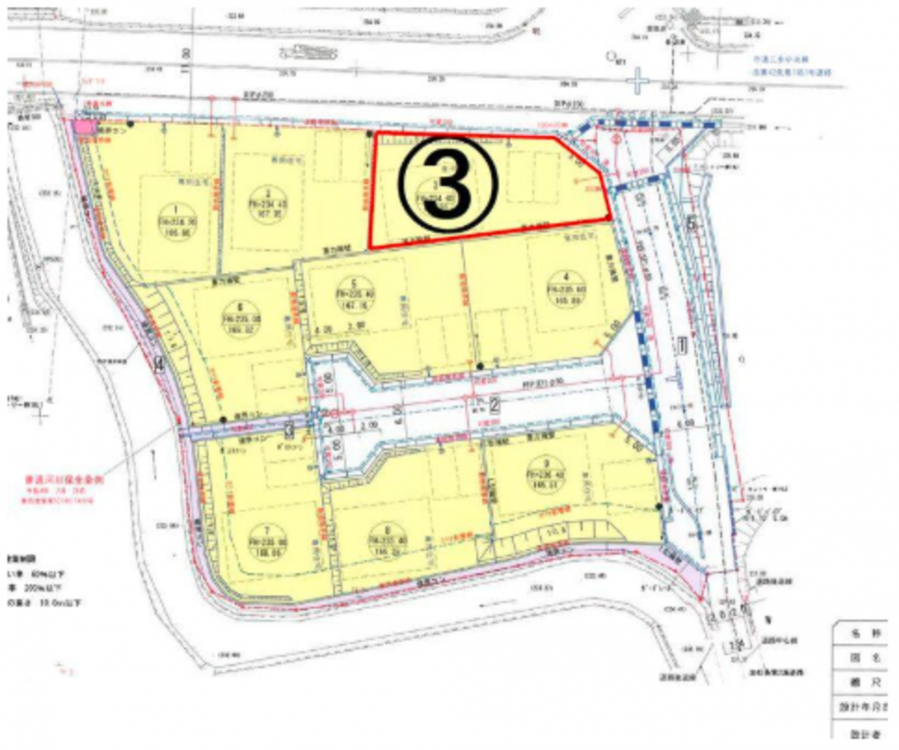
- 土地面積
- 実測 182.55㎡ (55.22坪)
- 建ぺい率
- 60%
- 容積率
- 200%
- 土地権利
- セットバック
- 無し
- 小学校区
- 三永 (500m)
- 中学校区
- 向陽 (4500m)
- 私道負担
- 建築条件
- なし
- 地目
- 田
- 現況
- 更地
- 引渡時期
- 期日指定 2027年1月 下旬
- 上水道
- 下水道
- ガス
- 都市計画
- 市街化調整区域
- 用途地域
- 定無
- 設備・条件
- 備考
- 取引態様
- 仲介
周辺地図
その他周辺物件
*35年ローン / 金利0.600%の場合
※審査により金利は変わる可能性があります。
詳しくは詳細ページをご覧ください。



